On 5 February, MVDC’s Development Management Committee (‘DMC’) defied Bookham resident’ views, logic, physical evidence, and even its own Local Plan Policies to pass the outline planning application for Preston Farm.
Residents have consistently said the Preston Farm site is unsuitable for large scale development. Over 300 letters of objection have been sent to MVDC. Yet the Council ignored Residents views and included the site in its Local Plan. Now that damaging decision has been compounded by the DMC granting outline planning permission for the development.
The whole unedifying meeting can be watched online:
We provide below some information for residents on Who Said What; Some Key Issues; Where We Stand on the issues; and What Next.
Who Said What (not verbatim)
A Planning Officer introduced the proposal, possibly one of two who had given contradictory responses in the Officer’s report.
Christine Milstead gave an impassioned plea against the development as an affected resident.
Keith Whale as Chair of the BRA’s Planning Committee re-iterated the concerns raised consistently on your behalf, seeking a rejection or, at minimum, a deferral of a decision as too many issues remained unanswered. They still are unanswered.
Speaking on behalf of the plans was Tristan Robinson, Thakeham’s director of external affairs spoke for the development, highlighting the shortage and unaffordability of housing.
Cllr Kennedy eloquently presented the case against the development on behalf of Bookham Councillors, which was allowed as he is not a DMC member and had no vote in the meeting.
Around a dozen from the BRA and residents watched from the public gallery. We were told to remain silent by the Chair, an instruction repeated after one of the Officer’s early responses elicited spontaneous laughter of disbelief from the gallery. Quiet murmurings and head shaking was de rigeur after that.
The meeting was opened to Councillor’s questions, a process slowed by Cllr. Adams having been unable to read in advance the Officers’ 22-page addendum of further responses issued only at midday. Cllrs Weller and Matthews raised and reinforced many matters of residents’ concerns. The Chair cautioned all Councillors to keep their comments respectful when talking about other ‘competent authorities’, which felt like the discussion was being stifled.
The final stage was the “debate”, more an expression of views than a challenging debate. At this point, Cllr Adams was ejected from the meeting by the Chair as his statements showed he was pre-determined (an absolute no-no).
The vote was: For – 8 (non-Bookham Cllrs), Against – 3 (the two remaining Bookham Cllrs and one other), Abstain – 1.
Some key issues?
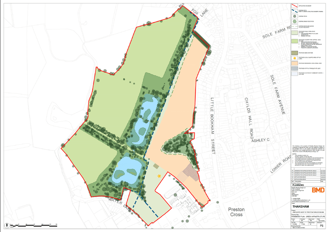
Density. Cllr Slater argued that to permit 200 houses on Preston Farm sets a precedent for a 35% increase in housing density on former Green Belt. Cllr Budd called for the number to be reduced to 148 homes, compliant with the Council’s Local Plan Policy. Another councillor questioned why there is a Policy on density if it does not form a part of assessing an application? All fell on deaf ears. It seems planners interpret Policy as merely guidance at times, and that the housing density reflected in Policy D3 in the Local Plan is now advisory; the number of houses can be determined finally during design. The Officer stated that planning approval is more concerned now with design and character than density.
How can the Council believe that Thakeham can conclude an agreement on the development in advance on finalising the number of homes and thereby its income stream? Having certainty on the number of homes that can be developed is a fundamental point. Officers confirmed that the agreement for the development is “at an advanced stage of negotiation” and, if that is true, the number of homes the Council will allow must already be a done deal. So much for Officer’s assurances that the number of 200 might be lowered!
Infrastructure. Some Councillors expressed concern over the adequacy of infrastructure, especially school places and GP facilities. When questioned on how the Integrated Care Board identified a need for only a £192k contribution to healthcare, notwithstanding the recent problems in Fetcham and Leatherhead being likely to increase pressure in Bookham or the ICB using old census data, the Officer stuck resolutely to the line that this assessment comes from the external ‘competent authority’. Questions on school places and a concern that the Howard of Effingham development still had not started, leading to a suggestion of it being over-subscribed until re-developed, were met with same bland assurance that the response had come from the competent authority. Though more detail could have been elicited from those responses from the competent authorities, this was clearly considered by Officers to be outside their remit.
Building heights were discussed, though a suggestion of having basements in all and lowering the overall heights sank into the boggy ground that would have made this impractical, without the water table ever being mentioned in this context.
Funding the SANG. The long-term funding of the SANG (aka Country Park) was discussed. The Officers implied that this would be secured from Thakeham into perpetuity and gave no hint of the concern raised by the BRA that the funding projections were woefully short due to a failure to understand how inflation compounds (this alone having a threefold impact), the impact of VAT on some elements (if it is a public body) and an under-estimate of development costs.
Evidence. Cllr Weller was concerned as to how a decision could be taken on the development when there was such a lack of robust evidence across many issues, perhaps more willing than the Officers to properly test the response of whichever was the relevant competent authority.
Chalk streams were discussed, with the Chair noting that DEFRA intended to remove their protection and the Officer that Natural England had declined to meet the Council, even though it has been the body to which the Council had in the past deferred on chalk streams being present. Officers maintained that there had been no new evidence on the presence of chalk streams. So, having ignored the evidence previously provided it appears Officers think they can continue to ignore that evidence. Despite this, there was an acknowledgement that South East Rivers Trust had written in January 2025 to say that they believed there were winterbourne chalk river headwaters; however, there was an attempt by the Officers to dissipate this by suggesting that this referred generally to the area, rather specifically to the development site.
Cllr Matthews urged the case for a hydrological study to determine the issue. This may yet be enforceable as Officers are recommending a condition that, prior to the development commencing, a map is produced showing all of the ecological features. Much may depend on whether the map needs to be new and updated, or can it be one of the many from within the last couple of centuries showing the changing ecology?
Traffic. When the concerns over cyclists and pedestrians exiting the development at Fox Lane and short-cutting to the station via Burnhams Road was raised, the Officer’s response related solely to pedestrians and suggested they would follow obediently the longer route avoiding the private road. ‘Pathways of desire’ (i.e. people will walk and cycle along the shortest route available) is a well understood concept everywhere, it seems other than in MVDC’s Planning Team. Cyclists and pedestrians will follow human nature and take the shortest route.
Biodiversity Net Gain. Some Councillors were puzzled how the application might be exempt from BNG when the Council had established policies on Biodiversity for some time beforehand. The Officer’s answer did not differentiate fully between Biodiversity and Biodiversity Net Gain, but concentrated on the timing of the application, meaning that it preceded the date for meeting certain BNG requirements under the Levelling Up and Regeneration 2023.
Interesting that this pre-dating is allowed, even though the development will post date the requirement and there was a significant change to the developable area after the key date; and, at the same time, Officers are anticipating the loss of existing chalk stream protections on the basis of a mere intention by DEFRA.
Where we stand on the issues?
Housing numbers – we must assume that it will be near enough the 200 to ensure the Developer finds the development suitably profitable. The Council may already be predetermined to break its Housing Density Policy.
Medical and education infrastructure – not seen by Officers as being the Council’s responsibility. Not very reassuring.
Traffic & the main access – not seen by Officers as being the Council’s responsibility. Not very reassuring.
Sewerage infrastructure – not seen by Officers as being the Council’s responsibility. Rather, it is for Thames Water (if still around by then) or presumably its successor. Not very reassuring.
Flooding – it was stated that the onus in the planning process is not to remedy shortcomings of the past but simply to ensure the situation is not made worse. Not very reassuring, especially for those residents who have experienced increased flooding after previous development.
The buffer around the perimeter, providing separation for existing residents – it is said that this will be dealt with as the detailed design progresses. Not very reassuring
Defining the Green Belt boundaries – it is said that this will be dealt with as the detailed design progresses. Not very reassuring.
The SANG – its funding will be sorted as part of a Section 106 agreement, whether or not with corrected costings may be another matter. If left, the problem will fall to another authority by then.
What Next
The next stage will be for the developer to bring forward a detailed plan of what it wants to build. MVDC’s Planning Officers will review the proposal and eventually the Development Management Committee will go through the same process as described here to decide what development should be allowed.
The prospect of having this inappropriate development forced upon the Bookhams is as repugnant now as it was when it was first proposed. From past performance we cannot rely on the Council, its Development Management Committee, or its Planning Officers to do what is right for the Bookhams.
We will need to fight-on to try and minimise the damage done through modifications to and conditions placed upon this inappropriate development.
Please keep us up to date with your priorities and concerns so we can help you as best we can.


